海信慧园
32939元/㎡
地址:东至现状,南至现状,西至迎江路,北至康安路
宜居生态
2023-07-05 来源:房字典
海信慧园拟打造5栋17F高层住宅楼,户型打造了建筑面积约89㎡的两种户型,建筑面积约107㎡的一种户型,得房率在80%左右。
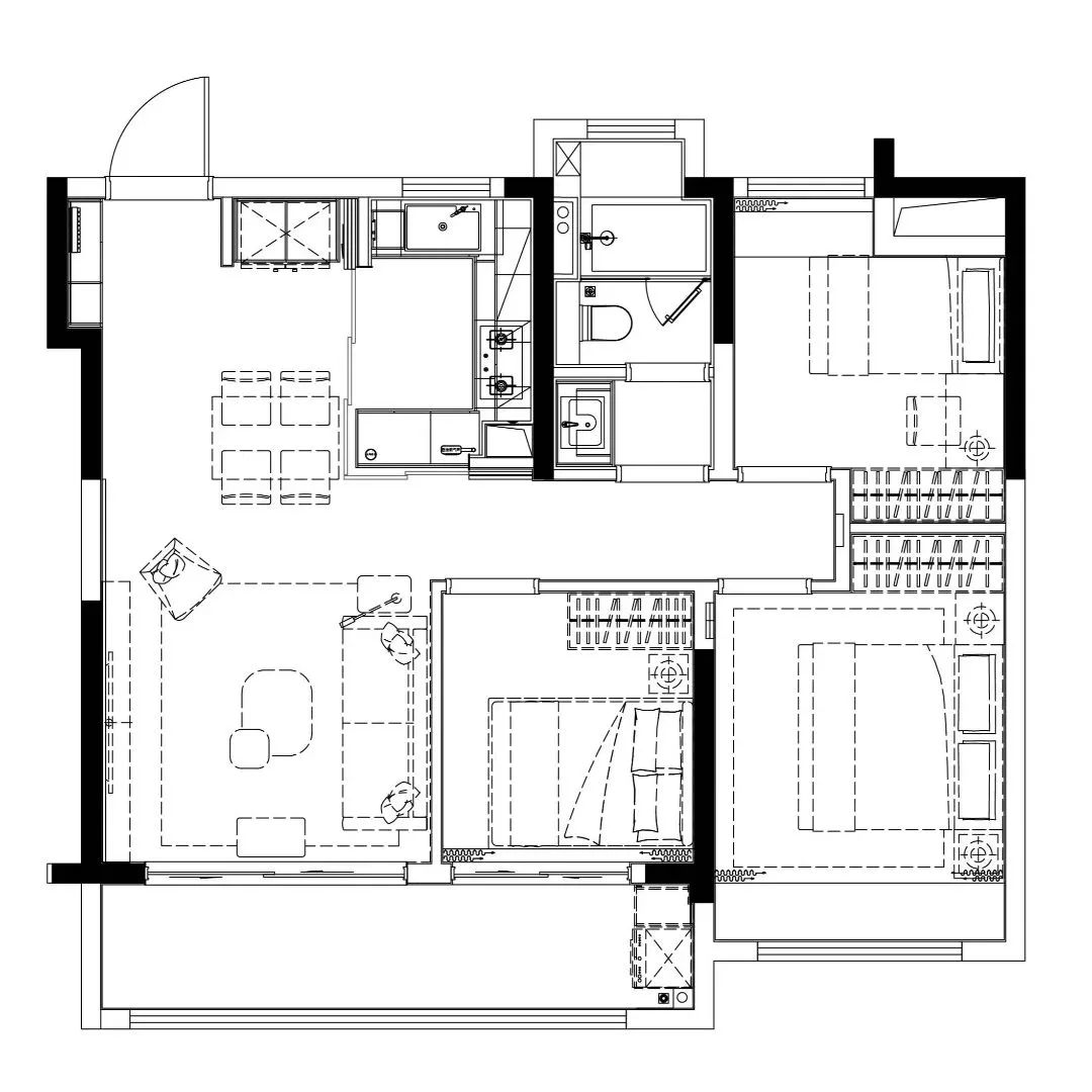
其中,海信地产最引以为傲的是打造了全市首创的“1.5卫”约89㎡户型。

户型解析:该户型就是传说中的“1.5卫”,从户型图上可以看到卫生间空间旁边还有如厕空间,相当于一个卫生间设置了两个马桶,在早上上班高峰期的时候可以合理安排,在约89㎡的户型中,作出这样的设计是惊艳还是鸡肋,还需要看到样板间来评判。除此之外,该户型还是约9.5面宽的三开间朝南,约6.3米的双开间阳台,餐厨相对,与客厅阳台形成较大的会客区,动静分离。

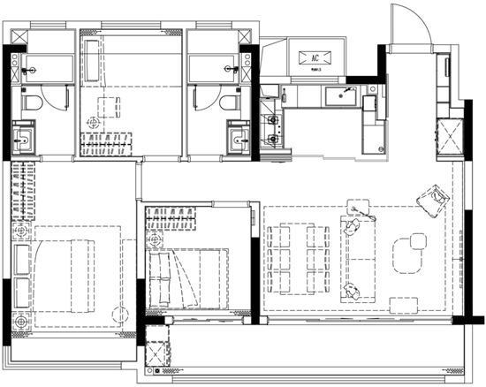
户型解析:比起上述的户型,该户型显得较为常规,卫生间为一卫且干湿分离,除此之外相对变化较大的是入户餐厨的位置,由南北相对变为东西相对,省了“0.5卫”的空间融合进了会客区,整体布局更为方正了一些。其余约9.5米面宽的三开间朝南,约6.3米的双联阳台,主卧飘窗等设计都与上述户型类似,但该户型为全明边户。

户型解析:该户型以建筑面积约107㎡的户型做的横厅设计,横厅面宽约5.4米,但包含了餐厅空间,厨房为U型设计,跑道式阳台长达约8.3米,主卧套房设计,包含了南向飘窗,步入式衣帽空间以及独立明卫空间。
想要了解更多楼盘详情请拨打售楼处电话咨询,售楼处电话:400-716-9656。